江津市二宮町Ⅱモデルハウス

江津市二宮町Ⅱモデルハウス
\ 2026年2月完成予定‼ /
人気の津宮小学校・青陵中学校校区!
モノトーンモダンの収納豊富な3LDK✨
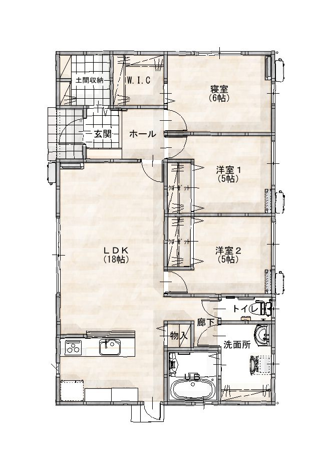
| 間取り |
3LDK

| 価格 |
価格 2,520万円(税込)
月々支払い 63,719円
※月々返済事例は借入金額2,520万円、金利1.0%、40年返済、ボーナス・頭金無しで算出
| おすすめポイント! |
◆ 駐車場約3台分、エアコン2台、家具家電付き◆
・照明器具
・ダイニングテーブルセット
・ソファー
・TVボード
・カーテン
・太陽光発電搭載
・外構工事
・人気の津宮小学校、青陵中学校校区!
・通学安全♪子供の成長を見守れる立地🏫
・LDKは広々使える18帖✨
・水回りをまとめた効率的な家事動線◎
・玄関から洗面直行!ただいま手洗い習慣👏🫧
・しまう場所に困らない、W.I.C&土間収納あり!
・安心安全のオール電化+太陽光搭載🌞⚡
| 周辺環境 |
・津宮小学校:約500m(徒歩で約7分)
・青陵中学校:約1km(徒歩で約15分)
・セブンイレブン江津二宮店:約750m(車で約3分)
・キヌヤ二宮店:約950m(車で約4分)
・JR都野津駅:約1.2km(車で約5分)
・済生会江津総合病院:約4.7km(車で約10分)
・江津市役所:約5km(車で約11分)
| 物件概要 |
| 所在地 | 島根県江津市二宮町神主2266番地15 |
| 地積 | 233.25㎡ / 70.55坪 |
| 地目 | 宅地 |
| 区域 | 都市計画区域内 |
| 用途地域 | 第二種住居地域 |
| 建蔽率 | 60% |
| 容積率 | 200% |
| 道路 | 道路幅員6m |
| 交通 | JR都野津駅まで約1.2km |
| 構造 | 木造一階建て |
| 延床面積 | 84.46㎡ / 25.54坪 |
| 施工面積 | 86.12㎡ / 26.05坪 |
| 建築年月日 | 2026年2月完成予定 |
| 確認許可番号 | 第HP13-4089812号 |
| 取引形態 | 売主 |
| お問合せ |
浜田店










